Kits Point waterfront development site
1000 Cypress Street, Vancouver
SOLD $12,800,000

Overview
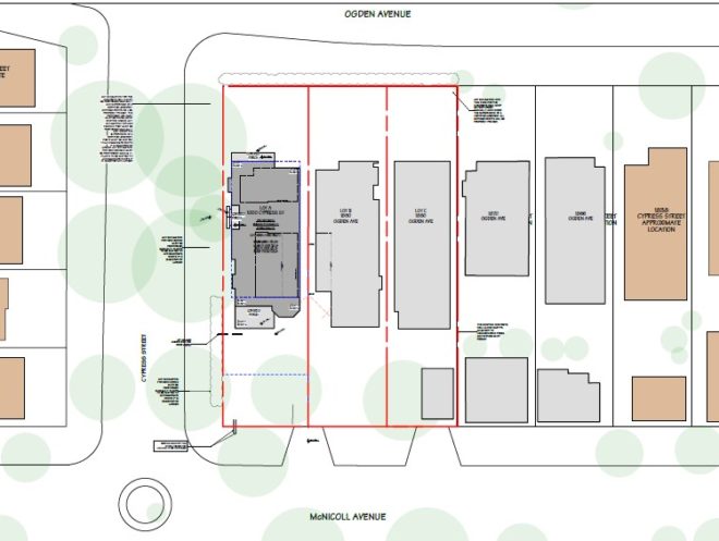
1000 Cypress Street is a rarely available waterfront property in the idyllic Kits Point neighbourhood. The 14,256 SF (99’ x 144’) corner site offers street frontages on three sides, and has an approved development permit application proposing to subdivide and redevelop with 3 high-end single-family homes designed by the renowned firm Formwerks Architectural. Alternatively, several different configurations could be contemplated including multi-unit housing, two large luxury homes or one large world-class residence. RT-9 zoning permits duplex and single-family houses with a maximum 0.75 FSR.
The site is currently improved with an 8-unit townhouse style apartment building built in 1972. Five of the eight suites are currently tenanted, and a comprehensive Tenant Relocation Plan (TRP) has been submitted and approved by the City of Vancouver. The existing building provides potential for $170,000 annual net income if vacant and owner-occupied units were to be rented out at market.
The location is arguably the most desirable of any site in the highly coveted Kits Point enclave. Surrounded by parks and with unobstructed waterfront views, direct beach access, and minutes from downtown/shopping, this property is perfectly situated for those who wish to experience Vancouver at its best.

Proposed lot / building areas
| Lot A | Lot B | Lot C | |
|---|---|---|---|
| Address | 1000 Cypress Street | 1890 Ogden Avenue | 1880 Ogden Avenue |
| Lot Area (SF) | 5,184 | 4,752 | 4,320 |
| Frontage (Ft) | 36 | 33 | 30 |
| Above Grade (SF) | 3,721 | 3,417 | 3,241 |
| Basement (SF) | 209 | 212 | 0 |
| Total Floor Area (SF) | 3,930 | 3,628 | 3,241 |

Location
1000 Cypress Street is positioned at the northern end of Kits Point surrounded by parks and immediately opposite the waterfront, featuring stunning views of English Bay, the West End skyline and the North Shore Mountains. This unique corner site offers three road frontages: Ogden Avenue to the north, Cypress Street to the west, and with southern exposure to McNicoll Avenue.
Kitsilano, especially north of 4th Avenue, is considered one of the most desirable locations in the City of Vancouver to live with its numerous beaches, parks, recreation centres, retail amenities, cafes and its close proximity to Downtown Vancouver. The property is located four blocks north of Cornwall Avenue, the waterfront “main drag” which runs parallel to popular Kitsilano Beach coastline, and connects to the Burrard Bridge linking Kitsilano to Downtown Vancouver.
The site sits between two of the most scenic parks in the city: Kitsilano Beach Park and Vanier Park. Kitsilano Beach Park features exceptional recreational opportunities including an outdoor heated pool, tennis and basketball courts, a seaside walkway as well as the waterfront Boathouse Restaurant and Kitsilano Yacht Club. In addition to beaches and fields, Vanier Park is full of cultural amenities including the Museum of Vancouver, H.R. Macmillan Space Centre, Vancouver Academy of Music, and Vancouver Maritime Museum.

Financials
| Financing | Treat as clear title | |
|---|---|---|
| Assessment 2024 | Land Building Total | Land$14,644,000 Building$10,000 Total$14,654,000 |
| Taxes 2023 | $41,837 | |
| Notes | For additional information, please contact listing agent. | |
The information contained herein was obtained from sources which we deem reliable, and while thought to be correct, is not guaranteed by Goodman Commercial.
Contact
Mark Goodman
Personal Real Estate Corporation
mark@goodmanreport.com
(604) 714 4790
Ian Brackett
Kris Pope (Dexter Realty)
Personal Real Estate Corporation
pope@dexterrealty.com
(604) 318 5226
Goodman Commercial Inc.
560–2608 Granville St
Vancouver, BC V6H 3V3
Mortgage calculator
Contact
Mark Goodman
Personal Real Estate Corporation
mark@goodmanreport.com
(604) 714 4790
Ian Brackett
Kris Pope (Dexter Realty)
Personal Real Estate Corporation
pope@dexterrealty.com
(604) 318 5226
Goodman Commercial Inc.
560–2608 Granville St
Vancouver, BC V6H 3V3
Gallery




















































