East Van development sites
5026–5076 Earles Street, Vancouver
SOLD $30,550,000

58,821 SF (330’ × 178’)
Overview
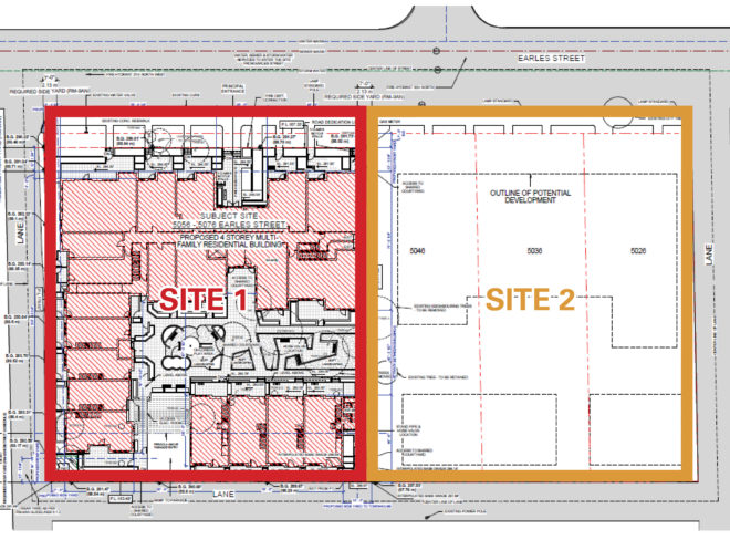
Purchase two side-by-side condo development sites totalling 58,821 SF (1.35 acres) with plans in place. Site 1 is DP ready, subject to a consolidation of the existing lots. Site 2 offers the opportunity to complete a second ‘mirror’ phase of the initial project. Efficiencies will be maximized in terms of timeline, construction crews, crane swing agreements and sales. Plans envision the construction of two 4-storey buildings comprising a total of 65 + 65 (total 130) market strata units over two levels of underground parking. Seller will entertain offers on one or both sites. Please call for details.

Redevelopment highlights
- Two 4-storey, 65-unit projects
- Proposed FSR of 1.96 for each site
- Buildable area of 57,557 SF for each site
- Net sellable area 52,261 SF for each site
- Max building height of 13.7 m
- 89 parking stalls proposed for each site
Architectural Rendering (Site 1):

Available reports
- Environmental reports
- Architectural plans
- Underpinning and crane swing agreements
- Latest City correspondence

Location
The Norquay Village neighbourhood is located in East Vancouver, with Kingsway being the centre artery. Primarily a residential neighbourhood with single detached homes, the area will soon see rapid change with the addition of apartment projects due to the zoning amendments in 2016.
The 29th Avenue Skytrain Station is a 9 minute walk and ensures easy transportation to Downtown. John Norquay Elementary is a 5 minute walk. Located two blocks to the south along Kingsway are numerous amenities such as Shoppers Drug Mart, the Royal Bank and many cafés and restaurants. Just a few blocks away at 2220 Kingsway, Westbank’s “Kensington Gardens” provides 428 new homes, a premium supermarket and other retail amenities.
Financials
| Financing | Treat as clear title. | |
|---|---|---|
| Assessment 2021 | Land Building Total | Land$22,614,000 Building$60,000 Total$22,674,000 |
| Taxes 2021 | $63,772 | |
| Notes | For additional information, please contact the list agents. | |
The information contained herein was obtained from sources which we deem reliable, and while thought to be correct, is not guaranteed by Goodman Commercial.
Contact
Mark Goodman
Personal Real Estate Corporation
mark@goodmanreport.com
(604) 714 4790
Manraj Dosanjh
Goodman Commercial Inc.
560–2608 Granville St
Vancouver, BC V6H 3V3
Mortgage calculator
Contact
Mark Goodman
Personal Real Estate Corporation
mark@goodmanreport.com
(604) 714 4790
Manraj Dosanjh
Goodman Commercial Inc.
560–2608 Granville St
Vancouver, BC V6H 3V3
Gallery























